Beschrijving

Deze uitgebouwde eengezinswoning met diepe en zonnige achtertuin van ca. 82m2 op het noordwesten is gelegen in een kindvriendelijke wijk nabij het gezellige dorpscentrum van Voorschoten met haar winkels en horecagelegenheden. 
Deze fijne woning dient wel gemoderniseerd te worden. 

Verder ligt deze woning gunstig t.o.v. recreatiegebied Vlietland, het station van Voorschoten, scholen, (sport) verenigingen en uitvalswegen. 

Heb je interesse in deze woning en zou je deze graag willen bezichtigen? Maak dan een afspraak via ons kantoor!

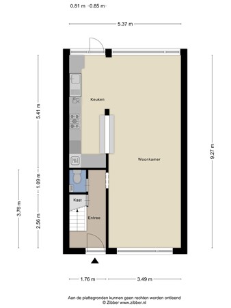
Indeling

Begane grond: voortuin, entree, gang met trapkast en toilet.
De ruime doorzon woonkamer is uitgebouwd en heeft veel lichtinval. Via de halfopen keuken loopt u de zonnige tuin in. Achter in de tuin staat een handige berging voor uw tuingereedschap.

Eerste verdieping

Overloop met bergkast. Aan de voorzijde bevindt zich een slaapkamer met vaste kast en de badkamer met douche en wastafel. Aan de achterzijde is een grote slaapkamer met vaste kast en een kleinere slaapkamer.

Tweede verdieping

Overloop met opstelling van de cv-ketel. Slaapkamer met dakkapel en bergruimte. Een dakkapel plaatsen aan de voorzijde is mogelijk.

Bijzonderheden

- Woonoppervlakte circa 100 m2 
- Perceeloppervlakte circa 166 m2
- Fijne en goede ligging
- Verwarming door middel van Nefit cv-ketel
- Energielabel D
- Bouwjaar circa 1961
- Oplevering in overleg
- Ouderdoms-/materiaalclausule en asbestclausule zijn van toepassing

Kenmerken